Zum Hauptinhalt springen Zur Suche springen Zum Menü springen
Artikelnummer: 140329

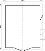
Garage ROGER 23,9 m2 ohne Tor

450 x 550 cm; 44 mm Wandbohlen
44
Wandstärke (mm)
24,75
Grundfläche (m²)
450 x 550 cm
Wandaußenmaß
ISO-Glas
Verglasung
Torvariante: 
4.271,00 €
inkl. 19% USt. versandkostenfrei
  • Lieferzeit: ca. 3 Wochen
Stk