Zum Hauptinhalt springen Zur Suche springen Zum Menü springen
Artikelnummer: 181314

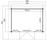
Gartenhaus FINJA 1 - 28 mm ISO - 350×260 cm, inkl. Fußboden

inklusive Fußboden und Unterkonstruktion
28
Wandstärke (mm)
11,70
Grundfläche (m²)
330 x 240 cm
Wandaußenmaß
inklusive
Fußboden + UK
ISO-Glas
Verglasung
16,7
Rauminhalt (m³)
ab
2.049,00 €
inkl. 19% USt. versandkostenfrei
Alter Preis: 2.199,00 €
  • auf Lager
  • Lieferzeit: ca. 3-4 Wochen
Stk
Alternativen ...