Zum Hauptinhalt springen Zur Suche springen Zum Menü springen
Artikelnummer: 175154

Tene Gartenhaus GLORIA H 28mm inkl. 18mm Boden

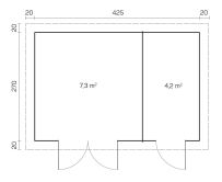
445 x 290 cm; 28mm Wandstärke
28
Wandstärke (mm)
11,48
Grundfläche (m²)
24,5
Rauminhalt (m³)
425 x 270 cm
Wandaußenmaß
inklusive
Fußboden + UK
Echtglas
Verglasung
ab
2.743,00 €
inkl. 19% USt. versandkostenfrei
  • Lieferzeit: 4-6 Wochen
Stk